


1079 Bay Street Lot B Port Rowan, ON N0E 1M0
Active (56 Days)
$599,900 (CAD)
MLS®:
40804496
40804496
Taxes
$1
$1
Type
Single-Family Home
Single-Family Home
Style
Bungalow
Bungalow
Views
No Water View
No Water View
County
Norfolk County
Norfolk County
Listed By
Serryn Stephenson, Coldwell Banker Homefront Realty, Brokerage
Source
CREA
Last checked Apr 9 2026 at 3:17 PM GMT-0400
CREA
Last checked Apr 9 2026 at 3:17 PM GMT-0400
Bathroom Details
- Full Bathrooms: 2
Subdivision
- Port Rowan
Lot Information
- Conservation/Green Belt
Property Features
- Fireplace: Other - See Remarks
- Fireplace: Total: 1
- Fireplace: Electric
- Foundation: Poured Concrete
Heating and Cooling
- Forced Air
- Natural Gas
- Central Air Conditioning
Basement Information
- Full
- Unfinished
Pool Information
- On Ground Pool
Exterior Features
- Stone
- Other
- Shingles
Utility Information
- Sewer: Municipal Sewage System
Parking
- Total: 3
- Attached Garage
Stories
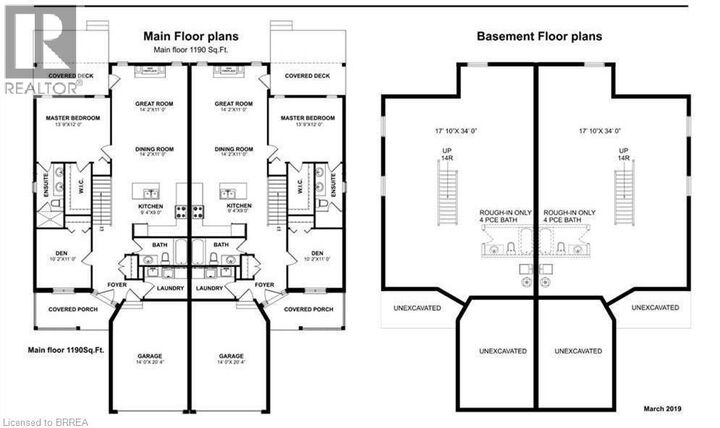
- 1
Living Area
- 1,190 sqft
Location

Description